Cena: 270 000
Powierzchnia: 44,80
Liczba pokoi: 3
Nawojowa
Dostępne
Kinga W.Filipek nr. Licencji 9270
+48 600 260 768
Oferta
Mieszkanie dwupoziomowe z ogródkiem- rezerwacja
Powierzchnia
44,80 m2
Ilość pięter
2
Piętro
1
Ilość pokoi
3
Rodzaj konstrukcji
pustak ceramiczny + 15 cm styropian
Okna
plastikowe trzyszybowe Veka
Łazienka
1
Media
prąd, gaz, woda , kanalizacja .
Ogródek
m2

Pliki do pobrania

11 Rozmiar: 0.09 Mb    Typ: jpg
22 Rozmiar: 0.11 Mb    Typ: jpg
33 Rozmiar: 0.19 Mb    Typ: jpg

Nawojowa dwupoziomowe mieszkanie

Do sprzedania mieszkanie położone na piętrze w wolnostojącym budynku dwurodzinnym w nowo powstałym osiedlu w  Nawojowej. W każdym budynku znajdują się tylko 2 mieszkania. Każde mieszkania ma przyporządkowany ogródek.

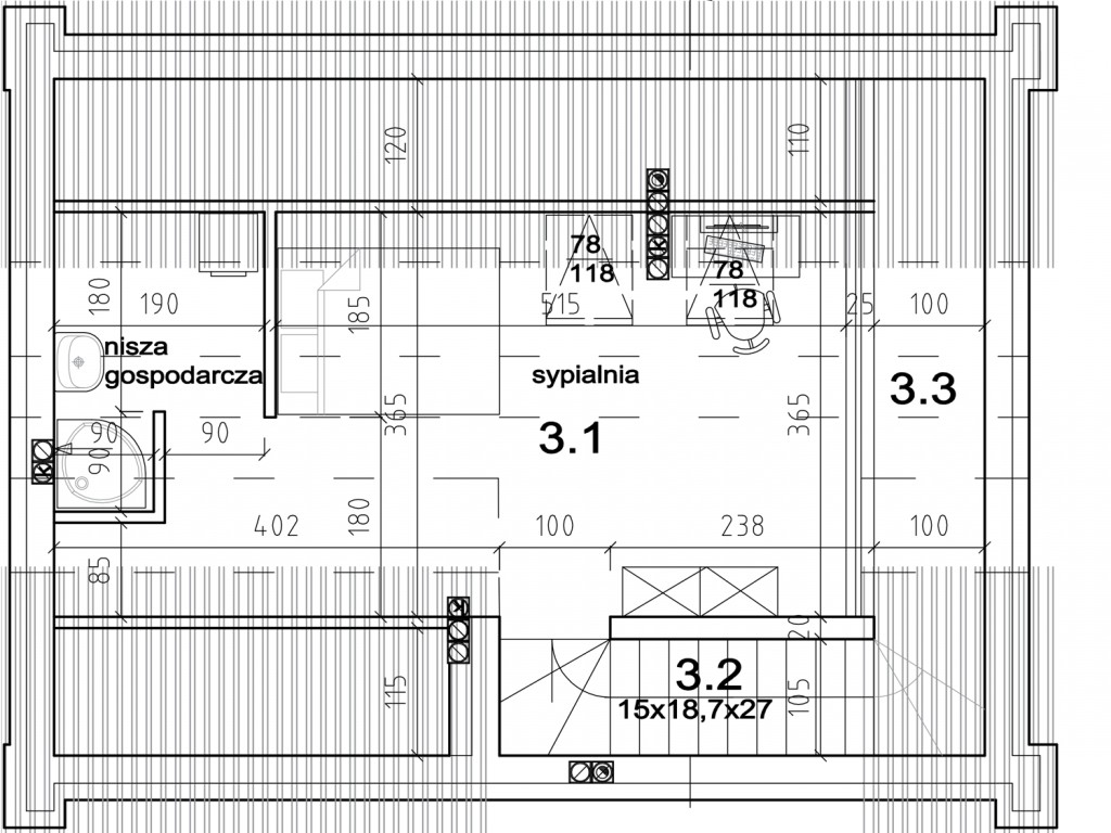
Na piętrze budynku położone jest mieszkanie dwupoziomowe o powierzchni 44,80 m2.
Na poziomie ” 0” znajduje wiatrołap . 

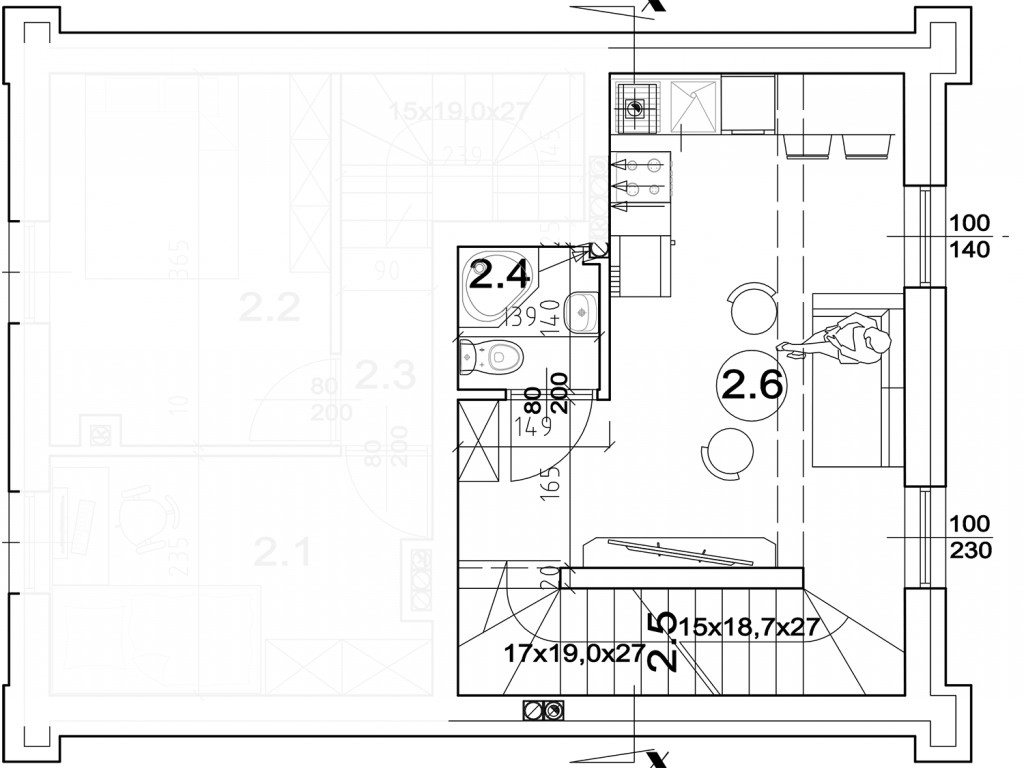
Na poziomie " +1" jest salon z aneksem kuchennym, toaleta oraz korytarz przez który prowadzą na piętro schody monolityczne. Na poziomie poddasza znajdują się 2 sypialnie oraz łazienka.

Mieszkania w stanie deweloperskim wybudowanym z pustaka ceramicznego +  docieplenie styropianem gr.15 cm,  wykonane instalacje elektryczna , wodno -kanalizacyjna, gazowa, centralnego ogrzewania ( ogrzewanie podłogowe bez pieca). Instalacja 2.25 KW pod fotowoltaikę .

Dodatkowo płatny garaż blaszany z podmurówką.

Serdecznie zapraszamy na prezentację nieruchomości.
Niniejsza oferta nie stanowi oferty w rozumieniu Kodeksu Cywilnego, a dane w niej zawarte mają jedynie charakter informacyjny i mogą ulec zmianie.
Ostatnio oglądane

Ostatnie 10 ofert, które przeglądałeś na naszej stronie.