Cena: 670 000
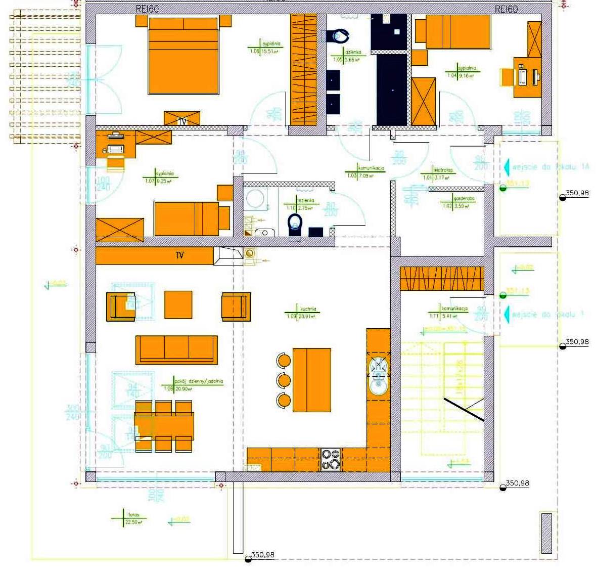
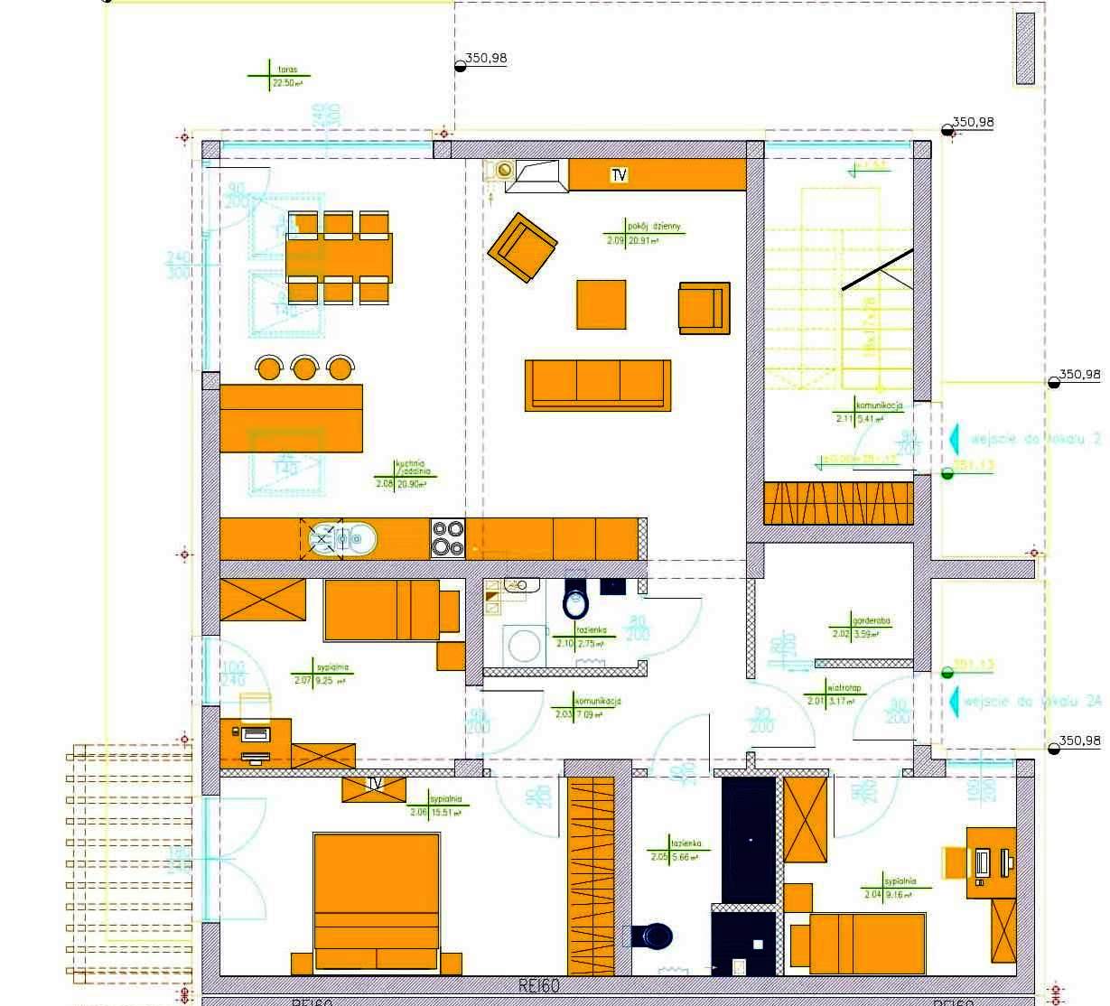
Powierzchnia: 97,98
Liczba pokoi: 4
Nawojowa Nowosądecka
Dostępne
Kinga W.Filipek nr. Licencji 9270
+48 600 260 768
Oferta
Apartament z ogródkiem Nawojowa Nowosądecka
Powierzchnia
97,98 m2
Ilość pięter
1
Ilość pokoi
4
Rodzaj konstrukcji
pustak ceramiczny + styropian 15 cm grafitowy
Pokrycie dachu
blachodachówka
Okna
trójszybowe + instalacja pod rolety zewnętrzne
Łazienka
1 + wc
Media
prąd, wodociąg, kanalizacja
Ogródek
m2

Pliki do pobrania

parter Rozmiar: 0.41 Mb    Typ: pdf
parter 1a Rozmiar: 0.16 Mb    Typ: jpg
parter 2a Rozmiar: 0.15 Mb    Typ: jpg

Apartament parter + ogródek + 2 miejsca postojowe

Na sprzedaż nietuzinkowy  apartament na parterze z ogródkiem + 2 miejsca parkingowe.

Oferta sprzedaży : lokal mieszkalny o powierzchni 97,98 m2  + udział w działce oraz drodze dojazdowej.

Przedmiotowa nieruchomość składa się z wiatrołapu , trzech sypialni , toalety , łazienki , dużej garderoby ,wysokiego salonu z aneksem kuchennym w stylu loftowym. Wysokość pomieszczeń 2,80 m , wysokość salonu 4,60 m

Ogrzewanie podłogowe zasilane indywidualną  pompą ciepła  . 

Stolarka okienna plastikowa  3 komorowa w kolorze antracytu , dwustronnie oklejona, duże stałe przeszklenia + okna dachowe dzięki którym wszystkie pomieszczenia będą doświetlone . Do lokalu przynależą dwa miejsca parkingowe na prywatnym parkingu oraz ogródek z tarasem .

Świetna lokalizacja dla osób które przemieszczają się komunikacją miejską -przystanek 100 m od budynku , najbliższy sklep spożywczy 350 m . 

                          

Serdecznie zapraszamy na prezentację nieruchomości.
Niniejsza oferta nie stanowi oferty w rozumieniu Kodeksu Cywilnego, a dane w niej zawarte mają jedynie charakter informacyjny i mogą ulec zmianie.
Ostatnio oglądane

Ostatnie 10 ofert, które przeglądałeś na naszej stronie.