Cena: 2500
Powierzchnia: 126
Liczba pokoi: 5
Nowy Sącz Centrum
Dostępne
Kinga W.Filipek nr. Licencji 9270
+48 600 260 768
Oferta
Lokal usługowo - biurowy
Powierzchnia
126 m2
Ilość pięter
3
Ilość pokoi
5
Okna
aluminiowe
Łazienka
1 wc + 1 prysznic
Media
prąd, woda, gaz , internet.

Pliki do pobrania

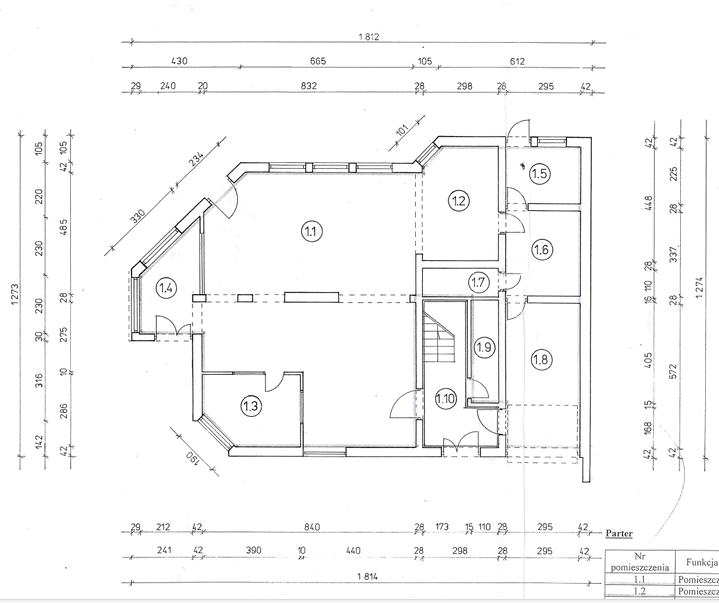
rzut parteru Rozmiar: 0.16 Mb    Typ: png

Do wynajęcia powierzchnia usługowa / biurowa/ produkcyjna

Przedmiot  najmu :  lokal usługowo- biurowy

Powierzchnia użytkowa :   126 m2

Piętro : parter

Ilość  pomieszczeń :  5

Media : internet,  prąd, woda, kanalizacja , ogrzewanie gazowe -piec 2-funkcyjny

Lokal handlowo - usługowy   mieszczący się na parterze  w okolicy ul.- Lwowska.  Lokal  składa  się  z  sali ekspozycyjnej,  zaplecza, pomieszczenia socjalnego   i  łazienki.  Wejście  do  lokalu  bezpośrednio z ulicy.  Parking przed budynkiem w tym 3 miejsca parkingowe przynależny przed wejściem.  Doskonała lokalizacja pod  handel, usługi, biura itp.

Odstępne   zł. 2.500,- + media

Kaucja  zł. 2.500,-

 

Serdecznie zapraszamy na prezentację nieruchomości.
Niniejsza oferta nie stanowi oferty w rozumieniu Kodeksu Cywilnego, a dane w niej zawarte mają jedynie charakter informacyjny i mogą ulec zmianie.
Ostatnio oglądane

Ostatnie 10 ofert, które przeglądałeś na naszej stronie.